03.04.26
Sommerfamilienfest 10. Mai 2026 im alten Bahnhof Werther

06.03.2026
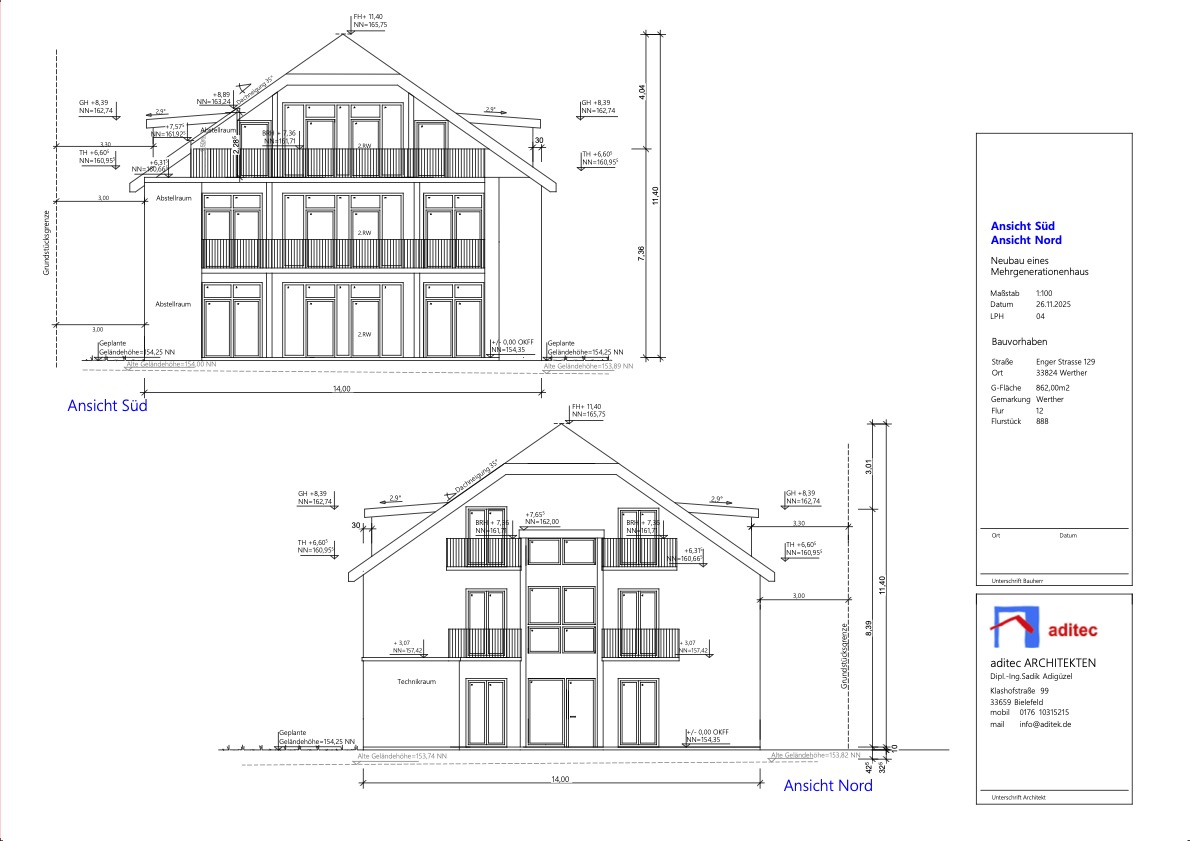
Neubau eines Mehrgenerationenhaus in Häger
Schräg gegenüber dem Dorfladen in Häger soll auf dem letzten freien Grundstück im Neubaugebiet
Nienhagen ein Mehrgenerationenhaus entstehen. Hierbei handelt es sich um insgesamt drei
Wohneinheiten mit Gemeinhschaftsräumen.
Im Bauausschuss der Stadt Werther gab es von einigen Stadträten über die veränderte Zufahrt Bedenken,
da sich die geplante Einfahrt nicht über die Straße Nienhagen sondern in einer gefährlichen
Kurve direkt von der Engerstraße in einer gefährlichen Kurve befindet. Die Stadt Werther
sieht aber keine andere Zufahrtsmöglichkeit und die Straßenverkehrsbehörde des Kreises
Gütersloh hat bereits ihr Einverständnis zur veränderten Zufahrt gegeben.
Damit wird der Ortsteil Häger wieder um ein Stück attaktiver!
Anbei die Skizzen für das geplante Mehrgenerationenprojekt in Häger.


----------------------------------------------------------------------------------------------------------------------------------------------
Auszeichnung mit der Ehrennadel der Stadt Werther

Lichterfahrt der Traktoren durch Häger am 21.12.2025

Video
-------------------------------------------------------------------------------------------------------------------------------
Weihnachtsmarkt in Häger am 06.12.25
Klein, aber sehr eindrucksvoll, war auch der diesjährige Hägeraner Weihnachtmarkt.
Kinder und Erwachsene waren über die breit gefächerte Organisation des Orga-Teams begeistert.
Herausragend war ein umfangreiches und leckeres Kuchenangebot.
Nach der Ansprache vom Bügermeister Veith Lemmen warteten nicht nur die kleinen Besucher gespannt auf den Nikolaus.
Der traf dann gegen 17 Uhr auf einem Schlitten ein - eine tolle Idee vom Organisationsteam.
Der Nikolaus war wieder Wolfgang Farys, der gekonnt und souverän die Kinder begeistete.
In den Zelten gab es Glühwein und verschiedene andere Getränke, die Feuerwehr bot wieder leckere Bratwürste, Currywürste und Pommes an, die Besucher griffen begeistert zu.
Alles in allem wieder ein gelunger Weihnachtsmarkt in Häger - trotz des nicht optimalen und kühlen Wetters.
Hier sind einige Fotos, die die äußerst positive Stimmung in Häger wiederspiegeln:


Wolfgang Farys auf dem Schlitten, war der Nikolaus


--------------------------------------------------------------------------------------------------------------------------------------------------------------------------------
25.05.25
Trotz Regen, Wind und bei nicht gerade gemütlichen Außentemperaturen kamen 70 Arminia-Bielefeld-Fans zum Public Viewing auf die überdachte Terrasse der Gaststätte „Dicke Dornberg“ in Werther.
Die Stimmung war sehr ausgelassen und gut. Als bereits in der 12. Minute der Lattentreffer des Arminenspielers S. Bazee an das Tor von Stuttgart krachte, waren die Fans begeistert und fast sicher, dass Arminia das Endspiel gewinnen könnte. Jedoch nach 3 Stuttgarter Toren innerhalb von 30 Minuten wurden die Gesichter der Arminia Fans immer mehr getrübt. Bei einem Halbzeitstand von 3:0 für Stuttgart wurde ein Arminensieg ziemlich unwahrscheinlich.
Dennoch zollten die Fans der Mannschaft von Arminia Bielefeld großen Respekt, denn für eine Mannschaft aus der 3. Liga ist es nicht einfach, im Endspiel Stuttgart zu besiegen.
Bei Bier, Bratwurst, Schaschlick und anderen Leckereien hatte sich die Gaststätte so richtig ins Zeug gelegt, um den interessierten Zuschauern auch kulinarisch etwas zu bieten.
Diese Veranstaltung wurde zum Schluß mit großem Beifall an den Freizeitverein Werther als Ausrichter belohnt. Die einhellige Meinung der Besucher war, es "RIECHT NACH WIEDERHOLUNG“.
Nach dieser Bitte der anwesenden Zuschauer/innen haben sich „Dicke Dornberg“ und der Freizeitverein Werther nach einem gelungenen Abend verabschiedet - nur das Endergebnis von 2:4 für Stuttgart störte alle Anwesenden.
Der Vorstand: Manfred, Andreas, Knut


06.09.24
Freibad Werther hat wieder gute Zahlen zu vermelden
Stefan Meier konnte erfreulische Zahlen für die Saison 2024 melden. Die Besucherzahlen lagen im langjährigen Durschschnitt von 26.950 Besuchern, auch wenn zu 2023 4.000 Besucher weniger waren.
Der 26.06.24 war der Rekordtag an Besuchern, da lösten 1253 Besucher ein Ticket an der Kasse.
Die aktuellen Wasser-Temperaturen lagen knapp bei 30 Grad, da freuten sich die Besucher, auch das Wetter meinte es dieses Jahr sehr gut mit uns. Meterologen berichten, dass 2024 das wärmste Jahr laut den Aufzeichnungen war.
Für das Jahr 2024 war Stefan Meier zufrieden. Dank der zwei neuen hauptamtlichen Fachkräfte, Timo Wolf und Thomas Himpel, könnte das Angebot umfangreicher aufrecht erhalten werde!.
Tolles Angebot hat die Stadt Werther für die Besucher wieder bereit gehalten, dafür gilt ein großer Dank an die Verantwortlichen der Stadt Werther.

20.08.24
Verabschiedung Pastorin Karin Hanke

Einzug in die St.-Jakobi-Kirche Werther, begleitet:
Birgit Gillmann (l.) Stellvertreterin des Superidenten, Karin Hanke

Predigt Pastorin Karin Hanke
Predigtext zu Lukas 13, 10-17

Verabschiedung in den Ruhestand durch Birgit Gillmann

Grußworte Bürgermeister Veit Lemmen
Dankesworte Karin Hanke
-------------------------------------------------------------------------------------------------------------
07.06.24
Martin Schulz zu Besuch in Werther
25.04.24
Radwegerweiterung zwischen Häger und Schröttinghausen
Lückenschluss kostet für 300 Meter Radfahrweg-Erweiterung, stolze 250.000 Euro
Sehr lange haben die Hägeraner und Betroffene dafür gekämpft, einen durchgehenden Radweg von Häger nach Schröttinghausen zu erhalten.
Nun hat die Verwaltung bei den Eigentümern erreicht, für diesen Radweg den Boden zu erwerben.
Dafür kann man den Bürgermeister und den beiden zuständigen Fachbereichen nur ganz herzlich GRATULIEREN!
In 2025 soll der Radweg fertig werden und die Bürger freuen sich!
Eine sehr gute Nachricht für alle Hägeraner, sowie dem Heimatverein, die bereits lange dafür sich eingesetzt haben, dass dieser Lückenschluss kommt.
WertherTV hat ein kleines Video dazu erstellt.
-----------------------------------------------------------------------------------------------------------
05.05.24
Liebe Mitstreiterinnen und Mitstreiter,
ich wende mich noch einmal in der Angelegenheit des Lückenschlusses an Euch und – keine Sorge -weiterhin positiv. Danke erst einmal für die guten Reaktionen von vielen von Euch, das zeigt: Ihr habt wirklich viel Zeit und Herzblut in das Projekt gesteckt und ich freue mich, dass nun der Durchbruch gelungen ist.
Uns alle treibt eins aber weiter um: Es ist genau diese uneinsichtige Stelle, wo jetzt Menschen allen Alters, auch Kinder, weiterhin queren und auf der Straße fahren müssen. Daher eint uns, dass wir uns dort bis zum erfolgten Lückenschluss Tempo 50 wünschen. Dies liegt leider nicht in der Hand der Stadt Werther (Westf.), sondern entscheidet der Kreis in Rückgriff auf den Straßenbaulastträger Straßen.NRW. Bisher war die Antwort auf diese Bitte stets negativ. Wir haben aber nun die freudige Nachricht genutzt und dort mitgeteilt, dass der Lückenschluss nun absehbar ist und bitte bis zur Freigabe des durchgängigen Fahrradweges noch vorrübergehend Tempo 50 angeordnet werden möge. Dem wird nun gefolgt werden, so dass alsbald die Geschwindigkeit von 70 auf 50 reduziert wird. Dafür bin ich dankbar und freue mich auf die nächsten Schritte.
Ihnen und Euch ein schönes Wochenende.
Viele Grüße aus Werther (Westf.)
Veith Lemmen
Bürgermeister
Durchwahl 0 52 03 705-11
----------------------------------------------------------------------------------------------------------
06.02.24
Busverbindung von Werther nach Melle
Nun ist es geschafft, der Kreis Gütersloh und die Stadt Melle haben es möglich gemacht,
dass eine direkte Busverbindung zwischen Werther und Melle gibt.
Dies werden viele Bürger nutzen, denn in Melle gibt viele Möglichkeiten einzukaufen.
Es bereichert die Vielfalt der Bürger beider Städte.
Anbei der Fahrplan, einfach anklicken, dann kommt der gesamte Fahrplan
25.01.2024
---------------------------------------------------------------------------------------------------------------------------
Traktoren fahren durch Häger, am 25.12.23

06.12.23
Gaststätte Massmann in Häger ist nun Geschichte - Abriß 06.12.23














Bild 1 Original von 1930
Bild 2 Massmann 2015
Bild 3 Massmann 2015
Bild 4 Theke Gaststätte 2015
Bild 5 Gaststätte 2015
Bild 6 Verkaufsladen Massmann 2015
Bild 7 Backofen Massmann 2015
Bild 8 Treppenaufgang 2015
Bild 9 Obergeschoss mit Übernachtungszimmern 2015
Bild 10-14 Abriß des Hauses 2023
Bild 15 was übrig geblieben ist von der Gaststätte Massmann 2023
Film Backofen 2015 - Alle Bilder unterliegen den Copyright, dürfen nicht kopiert oder weitergeleitet werden!

----------------------------------------------------------------------------------------------------
01.12.2023
In Häger hat ein Fahrzeug diesen Baum vor der Gaststätte Weinhorst umgefahren, hoffentlich kommt bald Ersatz.

26.10.23 Ausflug zum Landtag


Foto: Jannis.Tilicke
-----------------------------------------------------------------------------------------------------------
In Häger gab es ein Jubiläum

Unfall in Häger-City
Eine Frau (50) fuhr mit Ihrem PKW kommend von Jöllenbeck über die Enger Str. Str. und wollte in die Häger Siedlung links einbiegen. Beim abbiegen kam die Fahrerin von der Fahrbahn ab, beschädigte das Verkehrsschild und landete in der Hecke des Hauses Enger Str. 128.
Zum Glück kein Personenschaden, nur geringer Schaden am PKW und an der Hecke.

Unsere Bundestagspräsidentin Frau Bärbel Bas zu Besuch in Werther, am 15. Mai 2023
Teil 1 der Rede
Teil 2 der Rede
Klaus Henning hielt eine Rede zum Thema Ehrenamt, anbei der Redetext (nur Text, kein Video)
Quelle: Klaus Henning, Werther/Westf.
--------------------------------------------------------------------------------------------------------
Bald endet eine Ära in Häger!!
Die Gaststätte Massmann in Häger wird demnächst abgerissen, dieses hat die Stadt
Werther unlängst so beschlossen.
Damit geht ein Stück Tradition in Häger verloren, denn die Geschichte des Hauses geht
fast 470 Jahre zurück. Die Hofstelle ist Urbar der Grafschafts Ravensberg , im
Besitzrechtsverzeichnis von 1556 aufgeführt. 1854 erwarb das Anwesen die Familie
Massmann, bis zum Verkauf an die Stadt Werther im Jahre 2008.

Direkt neben dem Sportplatz gelegen, konnten viele Fußballspieler in die
Schankwirtschaft einkehren, dabei ging es schon einmal bis Mitternacht in geselliger
Runde zu, obwohl der Backbetrieb bereits wieder um 3 Uhr begann.

Die Massmann-Brötchen waren sehr beliebt und berühmt, sie fanden auch in Häger und
darüber hinaus, großen Zuspruch.

Hanna und Wilfried Massmann - er war gelernter Bäcker - stand bis zu seinem Tode im
Jahre 2004 (er wurde 73 Jahre alt) jeden Tag in der Backstube. Nach seinem Tod führte
Hanna das Ladengeschäft weiter. Gesundheitsbedingt mußte sie dann im Alter von 79
Jahren das Geschäft im Jahre 2010 aufgeben.

In dieser Backstube wurden die legendären Massmann-Brötchen gebacken. Die langen
Verkaufsschlangen an den Wochenenden zeugten von der großen Beliebtheit der
Backwaren.
Wilfried Massmann stiftete auch jahrelang Fußballpokale, er war dadurch sehr beliebt
und äußerst begehrt bei den Sportlern in Häger.

So sieht die Gaststätte Massmann vor dem Abriß noch aus.
-----------------------------------------------------------------------------------------------------------------



Am Sonntag, dem 02.10.22 beginnt der Haller Volkswandertag in Halle.
Alle Strecken beginnen an der Kreissparkasse und führen zunächst gemeinsam auf dem Wanderweg für Genießer über die Kiskerstraße hinauf zur Drachenwiese.
Ab hier geht es weiter in Richtung der Waldgrabstätten im Lotteberg.
Hier muss man sich entscheiden, ob man die 6-km-Strecke oder die 8-km-Strecke wandern möchte.
Die lange Strecke führt auf dem Wanderweg für Genießer und dem Wanderweg "Haller Spuren" vorbei am stillgelegten Steinbruch in Ascheloh, wo sie sich mit der verkürzten Strecke wieder vereint.
Weiter geht es mit einem kleinen Anstieg hinauf zum Storkenberg, wo die Wanderer ein schöner Ausblick auf die "Ascheloher Schweiz" erwartet.
Kurz nach der Schutzhütte wird der Wanderweg "Haller Spuren" verlassen und es geht durch ein Tal Richtung Berghagen.
Nun wandert man wieder Richtung Halle, vorbei an der Kaffeemühle zum Schützenberg.
Hier wird der Rastpunkt am Waldkindergarten erreicht.
Nach einer Stärkung mit Bratwurst, Kuchen, Kalt- und Heißgetränken kann sich der Wanderer entscheiden, entweder den Rückweg über die Apothekerstraße anzutreten oder weitere 5 oder 7 km zu gehen.
Diese Wege führen dann in westlicher Richtung über eine Umgehungsstraße in die Hesselner Berge bzw. Große Egge und zurück durch das Mödsiek zum Rastpunkt Schützenberg.
Auf diesem Abschnitt werden verschiedene Themenwege (Weg für Geniesser, Hermannsweg und "Rund um die Haller Egge") belaufen.
Ab dem Rastpunkt verläuft der Rückweg über die Apothekerstraße zur Sparkasse.
Alle Strecken beginnen an der Kreissparkasse und führen zunächst gemeinsam auf dem Wanderweg für Genießer über die Kiskerstraße hinauf zur Drachenwiese.
Ab hier geht es weiter in Richtung der Waldgrabstätten im Lotteberg.
Hier muss man sich entscheiden, ob man die 6-km-Strecke oder die 8-km-Strecke wandern möchte.
Die lange Strecke führt auf dem Wanderweg für Genießer und dem Wanderweg "Haller Spuren" vorbei am stillgelegten Steinbruch in Ascheloh, wo sie sich mit der verkürzten Strecke wieder vereint.
Weiter geht es mit einem kleinen Anstieg hinauf zum Storkenberg, wo die Wanderer ein schöner Ausblick auf die "Ascheloher Schweiz" erwartet.
Kurz nach der Schutzhütte wird der Wanderweg "Haller Spuren" verlassen und es geht durch ein Tal Richtung Berghagen.
Nun wandert man wieder Richtung Halle, vorbei an der Kaffeemühle zum Schützenberg.
Hier wird der Rastpunkt am Waldkindergarten erreicht.
Nach einer Stärkung mit Bratwurst, Kuchen, Kalt- und Heißgetränken kann sich der Wanderer entscheiden, entweder den Rückweg über die Apothekerstraße anzutreten oder weitere 5 oder 7 km zu gehen.
Diese Wege führen dann in westlicher Richtung über eine Umgehungsstraße in die Hesselner Berge bzw. Große Egge und zurück durch das Mödsiek zum Rastpunkt Schützenberg.
Auf diesem Abschnitt werden verschiedene Themenwege (Weg für Geniesser, Hermannsweg und "Rund um die Haller Egge") belaufen.
Ab dem Rastpunkt verläuft der Rückweg über die Apothekerstraße zur Sparkasse.
-----------------------------------------------------------------------------------------------------------------------------------------------------------------------
Wirtshaus Wiete schließt in Werther- Theenhausen
Die Nachricht, dass Wiete´s Wirtshaus in Theenhausen zum Monatsende -September 2022- schließt, hat für Bestürzung gesorgt.
Diese Nachricht hat unsere Stadträtin Frau Milke Gockel aus Theenhausen sehr erschrocken, denn diese Nachricht hat Sie nicht von den Einwohnern in Theenhausen bekommen, sondern aus der Zeitung.
Für Werther´s City wird es dadurch eine Bereicherung geben, denn es wird ein Umzug in die ehemalige Gaststätte "Tapasbar" geben.


Ehemaliges Wiete´s Wirtshaus, geleitet von Dorota Wiete Ehemalige Tapasbar "Momentos" geleitet vom Wirt Raul Soliman


